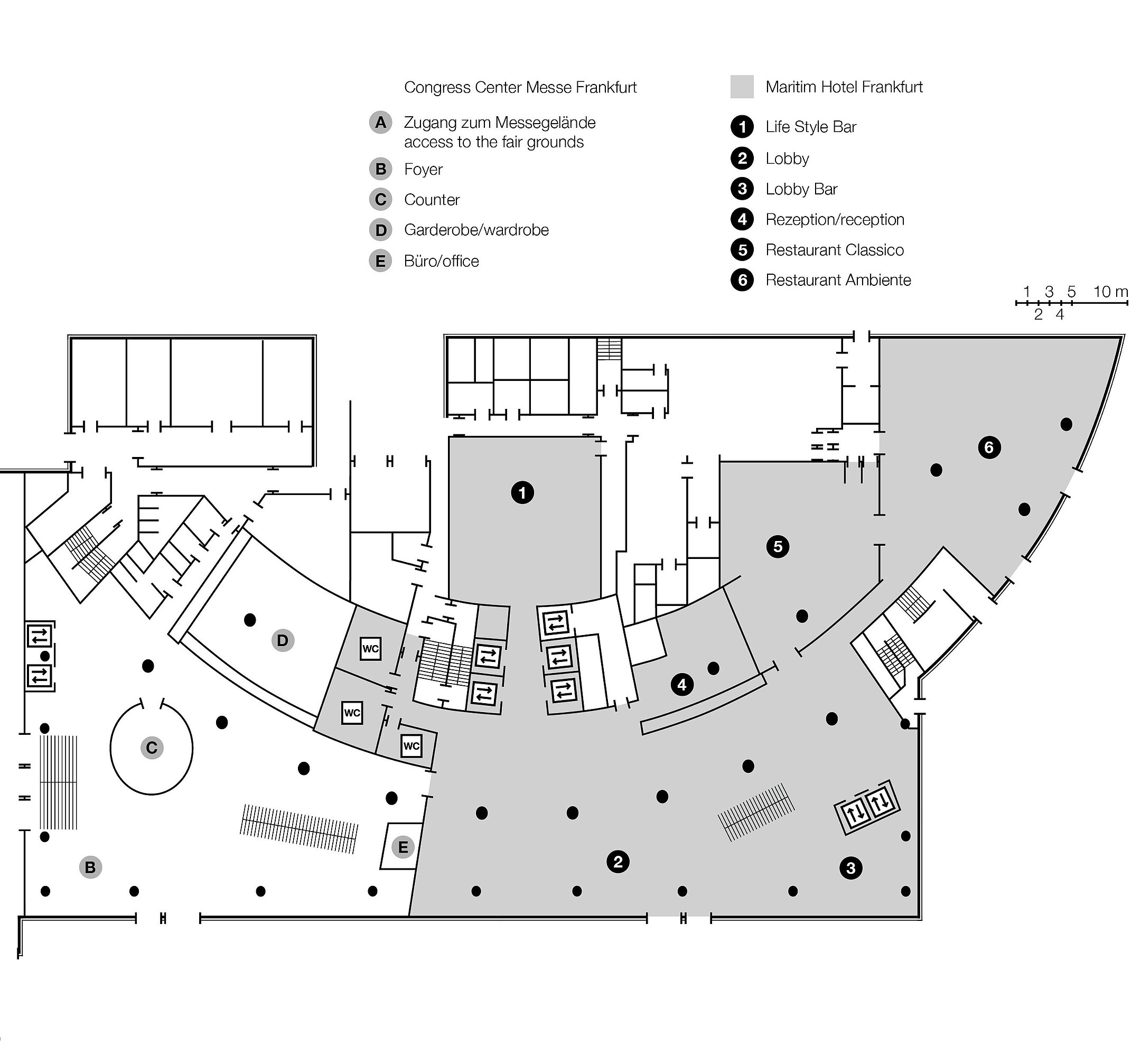
Il Maritim Hotel Frankfurt offre molto più di semplici spazi per eventi.
Oltre alle sale conferenze interne all’hotel, beneficia di un collegamento diretto con la Messe Frankfurt e dell’ampia offerta congressuale ed eventistica del Congress Center Messe Frankfurt (CMF).
Hotel, spazi per eventi e organizzazione: tutto da un’unica fonte, coordinato centralmente da Maritim.
Tecnologia
- Tutte le sale per eventi dispongono di luce naturale e sistema di oscuramento automatico
- Ogni postazione è dotata di connessione telefonica analogica e digitale gratuita
- Ogni postazione è dotata di connessione da 100 MHZ gratuita
- Ogni postazione è dotata di connessione con presa Ethernet/EAD (Co-ax RG 58)
- Sala Maritim III, 10 punti di attacco con capacità di carico da 75 kg ciascuno, palco permanente da 28 metri quadrati (7 x 4 m) e 60 cm di altezza, altezza dal sipario 3,35 m, altezza dal sipario al pavimento del palco 2,5 m
- Connessione dati con le strutture del centro congressi
Per supportare gli ospiti nell'organizzazione dei rispettivi eventi, l'hotel mette a disposizione tutte le normali attrezzature da conferenza così come dispositivi e strutture per audio e video. Tutte le sale per eventi dispongono di schermi fissi. Su richiesta, l'hotel offre inoltre servizi speciali tra cui sistemi di interpretazione simultanea.
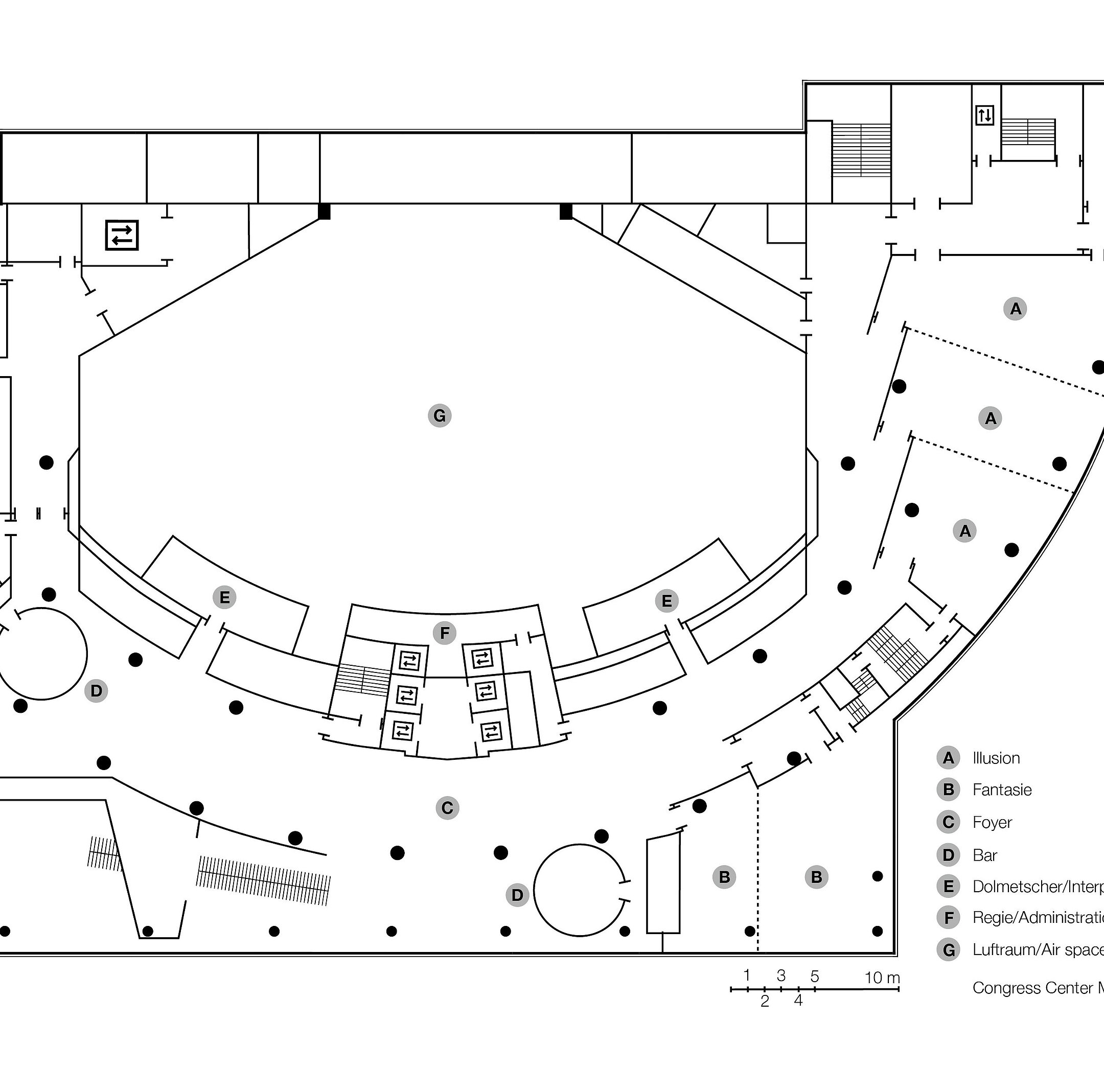
Apparecchiature per conferenze e strutture del centro congressi - Harmonie Hall
Pavimento
- superficie piatta, fisso, capacità di carico 1 t/metri quadrati, parquet
Palco
- retropalco 140 metri quadrati, avanscena
- 163,5 metri quadrati, composto da 13 elementi individuali regolabili verticalmente
Sistema di interpretazione
- 2 sistemi da 3 lingue ciascuno
Illuminazione
- 53 canaline luminose con lampade fluorescenti nei colori blu, bianco e giallo
- 300 faretti da incasso da 250 W ciascuno, alogeni
- L’intero sistema di illuminazione della sala è completamente dimmerabile e attivabile individualmente per ogni segmento in base alla suddivisione degli spazi
- 10 proiettori scenici installati in modo permanente
Apparecchiature sul soffitto
- 3 elevatori da soffitto per proiezioni ampie (carico massimo 100 kg)
- 31 punti di attacco in sala con capacità di carico da 2,5 t ciascuno
- 6 paranchi a catena nell’area scenica, ciascuno con portata di 1 t
- 6 paranchi a catena con capacità di carico da 1,6 t ciascuno nell'area del palco
- 8 punti di attacco mobili con capacità di carico da 2,5 t ciascuno nell'area del palco
- Altezza della sala compresa tra 6,90 m e 10,10 m
Impianto di amplificazione sonora
- 5 cluster di diffusori per la sonorizzazione frontale (regolabili separatamente), ciascun cluster dotato di 5 diffusori d&b Qi-1 e amplificatori d&b D-12
- 2 subwoofer, 2 × d&b Q-Sub
- 5 diffusori da palco per il campo vicino, 5 × d&b E3
- 6 monitor da palco, 6 × d&b MAX 12
- 15 gruppi di diffusori a soffitto (controllabili singolarmente)
- 4 torri di diffusori equipaggiate con KS CPA 2, CPA W (attivi)
- 2 torri di diffusori equipaggiate con KS TX 1, TW (passivi)
- Microfoni: Shure, Neumann, Schoeps
- Sistema di microfoni wireless: Shure UR4 con trasmettitore a mano UR2 (capsula SM87A) e trasmettitore bodypack UR1 (microfono lavalier WL185)
- Sistemi per discussione, conferenza e interpretazione: BOSCH DCNNG & BOSCH INTEGRUS & Shure ConferenceONE











